Strona główna
Mapa serwisu
Zgłoś ofertę
Polityka plików cookies
Kontakt

Wyszukiwarka

Nr oferty
 
 
 
Miejscowość lub dzielnica
Ulica
Powierzchnia
-
Liczba pokoi
-
Cena
-
oferty specjalne
Notes Zgłoś ofertę Kalkulator RODO Praca w naszej agencji Mapa serwisu Kontakt

Waluty

USD 3,98 EUR 4,32 CHF 4,53

Na skróty

adresowo.pl

Oferta nr: 6861/2791/OMS
Rodzaj oferty
mieszkanie ( sprzedaż )
Lokalizacja:
ŻABIA WOLA
Ulica:
Księżycowa
Cena:
923 000 PLN kalkulator
Cena za mkw:
6 688,41 PLN mkw
Powierzchnia:
138.00 m2
Liczba pokoi:
5
Piętro:
0
Liczba pięter:
1
Stan:
do wykonczenia
Rok budowy:
2026
Telefon:
TAK
Internet:
TAK
TV kablowa:
TAK
Opis
Mam przyjemność zaoferować Państwu bliźniaki przy ul. Księżycowej w Żabiej Woli.

Dostępne są dwa Bliźniaki (dokładnie 4 lokale)

Dostępne powierzchnie działek to 2 x 580 m2 oraz 2 x 500 m2

Powierzchnia jednego lokalu to 138 m2


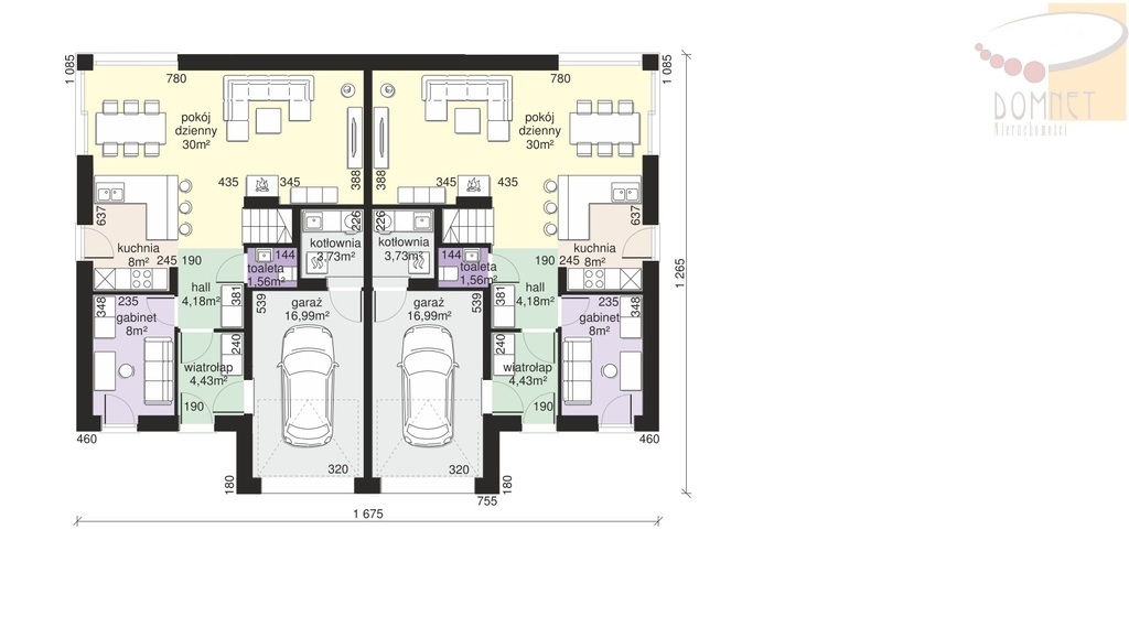
Parter lokalu

Przestronny pokój dzienny o powierzchni 30 m2, kuchnię (8 m2), gabinet (8 m2), hall (4,18 m2), toaletę (1,56 m2), kotłownię (3,73 m2) oraz wiatrołap (4,43 m2).

W bryle budynku znajduje się również garaż o powierzchni 16,99 m2.

Zgodnie z typową definicją, stan deweloperski obejmuje rozprowadzone instalacje (wodno-kanalizacyjną, wentylacyjną, elektryczną),
wykonaną betonową wylewkę na podłodze, tynki na ścianach, drzwi zewnętrzne, natomiast nie zawiera wykończenia podłóg, ścian ani drzwi wewnętrznych.

Układ pomieszczeń na piętrze

Na piętrze znajdują się następujące pomieszczenia, z podanymi powierzchniami użytkowymi oraz powierzchniami całkowitymi (w nawiasach)

- pokój o powierzchni (15,98 m2) każdy.
- pokój o powierzchni (12,71 m2) każdy.
- Łazienka o powierzchni 5,54 m2.
- Garderoba o powierzchni 7,12 m2.
- Hall + schody o powierzchni 10,83 m2.
- Strych o powierzchni (9,94 m2)

Wszystkie pomieszczenia dostarczane są w stanie deweloperskim, co oznacza, że ściany są otynkowane, a podłogi przygotowane do położenia wybranego przez nabywcę wykończenia.

Jest to jeden z 4 takich samych lokali (2 bliźniaki), które posiadam w sprzedaży.

Budynki zostały przygotowane z należytą starannością i sprawdzone.

Lokale będą oddane już z ocieplonym poddaszem wełną 30 cm.

Ściany są ocieplone styropianem grafitowym 20 cm.

Wszystkie okna na poddaszu jaki w lokalu trzyszybowe.



Serdecznie zapraszam do oglądania i zakupu

Maciej Przyłuski
Domnet Nieruchomości
506241140, 608317470




Powyższa oferta jest wyłącznie informacją handlową i nie stanowi oferty w myśl art.661 kodeksu cywilnego.
Kontakt
Maciej Przyłuski
Nr licencji pośrednika odpowiedzialnego zawodowo: 9385
506241140
mprzyluski@domnet.nieruchomosci.pl
 
Domnet Nieruchomości
Szkolna 15A
05-840 Brwinów
tel.: 608 317 920 / 608 317 470
email: biuro@domnet.nieruchomosci.pl
Pytanie w sprawie oferty
Imię i Nazwisko 
Telefon 
E-mail 
Treść zapytania 

Wyrażam zgodę na przetwarzanie moich danych osobowych przez firmę Domnet Nieruchomości dla celów związanych z działalnością pośrednictwa w obrocie nieruchomościami, jednocześnie potwierdzam, iż zostałem poinformowany o tym, iż będę posiadać dostęp do treści swoich danych do ich edycji lub usunięcia.
© 2026 Domnet Nieruchomości. Wszystkie prawa zastrzeżone.
asaricrm.com - programy dla biur nieruchomości

Domnet Nieruchomości, ul. Szkolna 15A, 05-840 Brwinów.